Skip to Content

Library Building Project: Building Renderings and Floor Plans

Explore how a new main library building could look—outside and in—with these renderings and floor plans from the project's architects, Schwartz/Silver.

Rendering of potential new library building: exterior perspective from Avenue A looking south.

 

Rendering of potential new library building: exterior perspective from Avenue A facing north

 

Rendering of potential new library building: bird's eye view.

 

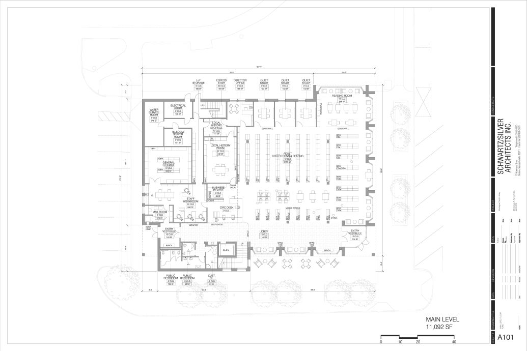
Floor plan for potential new library building: main floor.

 

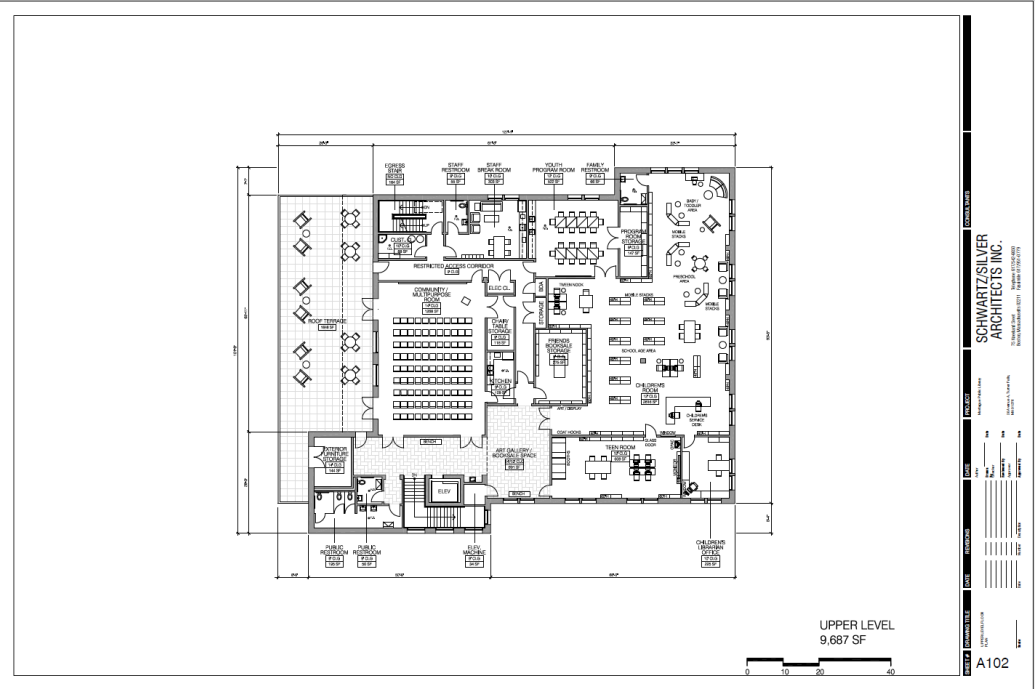
Floor plan for potential new library building: upper floor.

 

back to top